Aletitude Bar
Aletitude Pylon
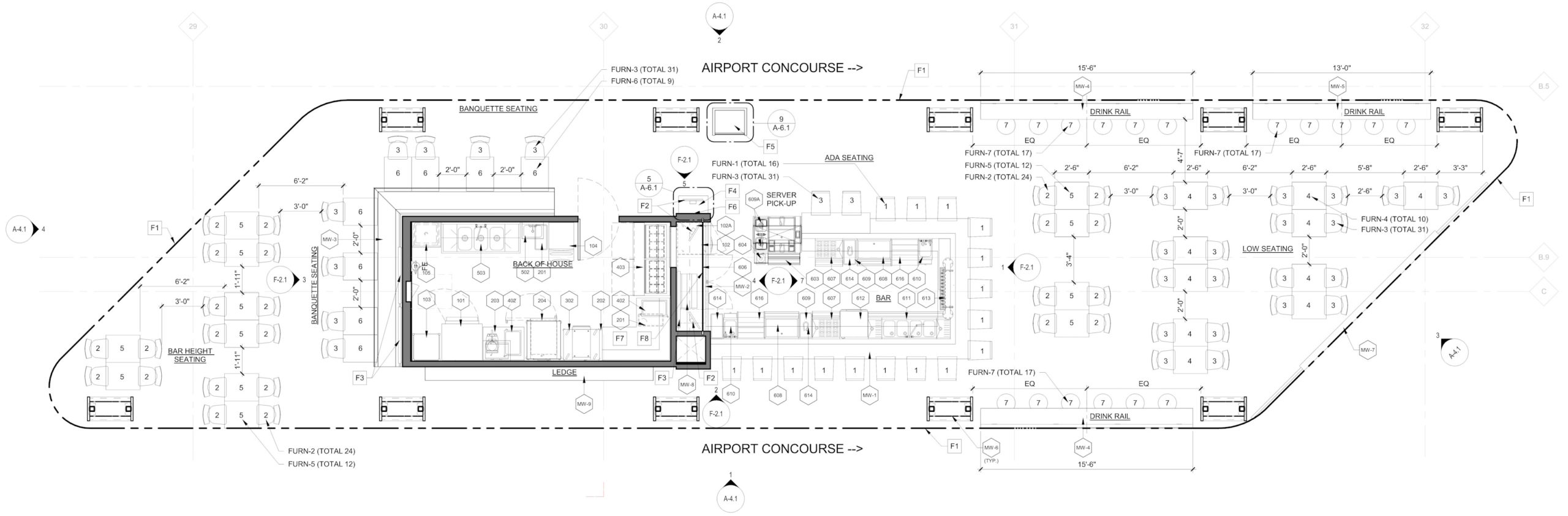
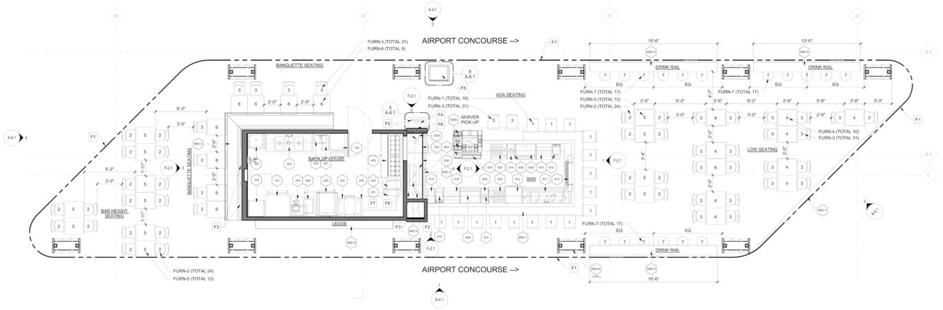
Aletitude Floor Plan
Aletitude-Exterior-Front-Side-5-HDR
Aletitude-Exterior-Front-Side-1-HDR
Aletitude-Exterior-Right-Side-1-HDR
Aletitude-Exterior-Back-2-HDR
Aletitude Bar Aletitude Pylon Aletitude Floor Plan Aletitude-Exterior-Front-Side-5-HDR Aletitude-Exterior-Front-Side-1-HDR Aletitude-Exterior-Right-Side-1-HDR Aletitude-Exterior-Back-2-HDR

Aletitude Ale House
Grand Rapids, MI

Bar in the Gerald R. Ford International Airport.