Bachelder Front
Bachelder Back
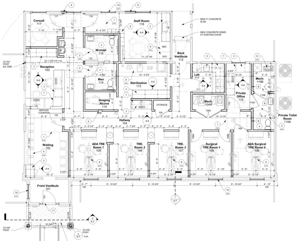
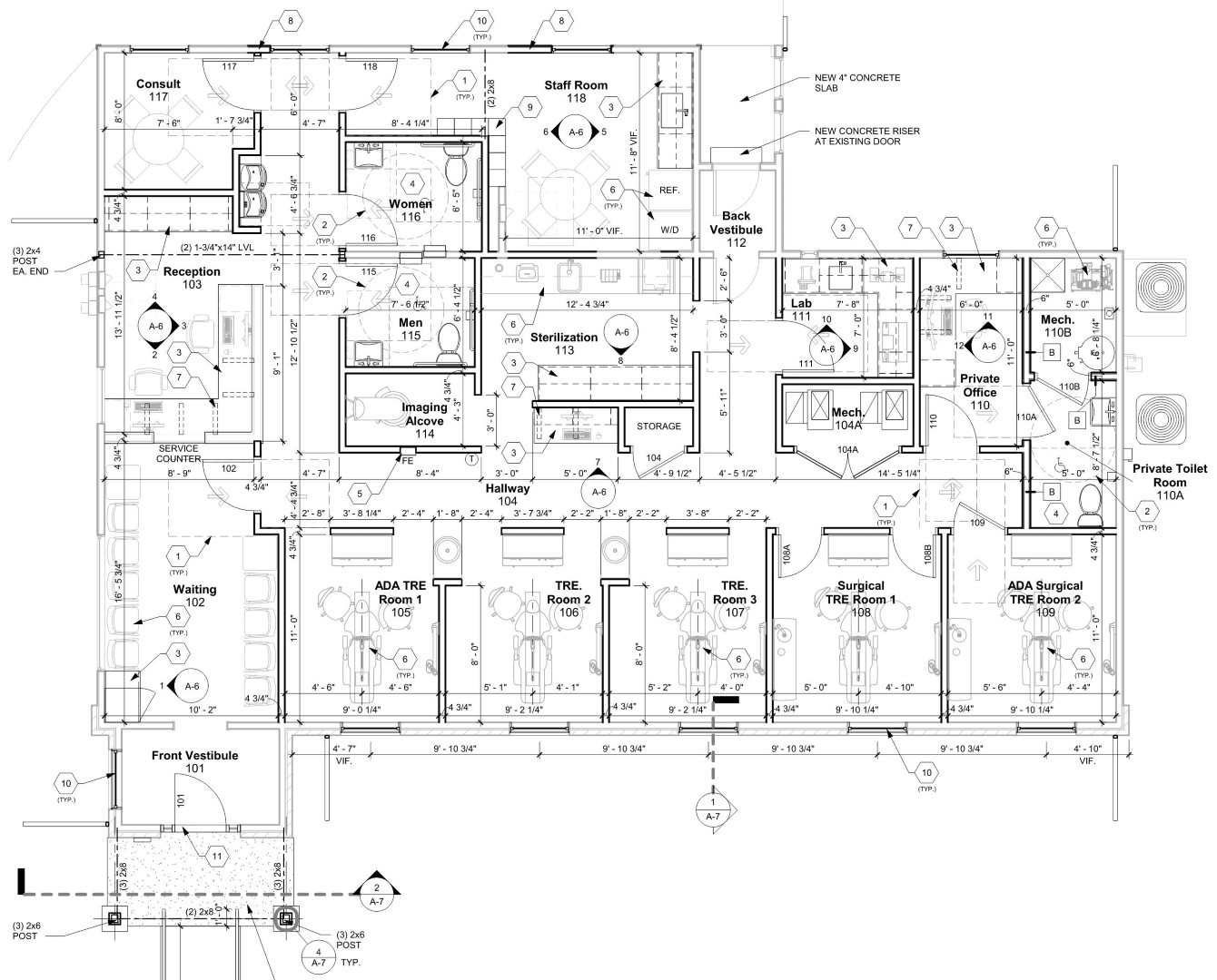
Bachelder Floor Plan
Bachelder Front Before
Bachelder Back Before
Bachelder Front Bachelder Back Bachelder Floor Plan Bachelder Front Before Bachelder Back Before

Bachelder Dentist Office
West Branch, MI

This project includes the renovation of an existing 2,100 square feet building to create a new dentist office that includes five treatment rooms.